Bật mí mẫu nhà ống mặt tiền 5m x 18m 4 tầng 4 phòng ngủ hút mắt ngắm tại TP HCM năm 2025
Nhà ống đẹp theo phong cách tân cổ điển lâu nay chưa bao giờ là lỗi thời, chúng luôn mang lại nét sang trọng, cao quý. Phong cách này xuất hiện và phát triển nổi bật nhất vào thế kỉ 18-19. Trải qua dòng chảy của thời gian, những công trình xây dựng hướng theo phong cách này vẫn luôn giữ được phong độ, luôn là những bức họa đẹp dưới bàn tay của các kiến trúc sư và người thợ.
Trong bài viết này, Phú NGuyễn sẽ giới thiệu tới các bạn mẫu nhà phố mang đậm phong cách tân cổ điển của gia đình bà Hiền – TP HCM. Công trình này được các kiến trúc sư của Phú NGuyễn đầu tư rất nhiều thời gian và công sức, được gấp rút triển khai kịp tiến độ khởi công thời gian lộc phong thủy của gia chủ.Thiết kế nhà ống 4 tầng gia đình bà Hiền trên diện tích đất không quá rộng, khoảng 90m2, xung quanh đều là nhà hàng xóm áp sát, để mở thoáng cho không gian nhà cần tính toán, bố trí các phòng khoa học. Chính vì vậy, gia đình đã liên hệ với Phú NGuyễn để có những giải pháp tối ưu nhất.

Mẫu nhà ống 4 tầng kiểu tân cổ mãn nhãn
I. Thông tin chung công trình nhà phố kiểu Pháp đẹp:
- Chủ đầu tư: bà Toàn Thị Hiền
- Địa điểm xây dựng: TP HCM
- Diện tích đất: 5m x 18m
- Diện tích xây dựng: 5m x 18m
- Mặt tiền chính: 5m x Chiều sâu: 18m
- Số tầng: Nhà phố 4 tầng
- Phong cách thiết kế: Nhà ống tân cổ điển Pháp
II. Nội dung thiết kế và công năng 4 tầng mẫu nhà ống đẹp:
- Tầng 1: Phòng khách 29.5m2 + Phòng bếp ăn 21m2 + Phòng kho + WC & Sân ướt sau nhà.
- Tầng 2+ 3: Phòng ngủ khép kín 31.5m2 + Phòng ngủ khép kín 26.5m2
- Tầng 4: Phòng thờ 15m2 + Phòng kho + Phòng giặt + Sân phơi.
- Tầng tum: Phòng kho
III. Kiến trúc tân cổ điển Pháp sang trọng nhà 4 tầng ống đẹp:

Mặt tiền 5m mẫu nhà ống tân cổ điển đẹp tại TP HCM
Thiết kế thu hút người nhìn ngay từ sắc sơn chủ đạo đến các chi tiết giật cấp, mái hiên vòm. Trước đây, khi nhắc tới những công trình mang phong cách tân cổ điển, ta thường sẽ liên tưởng tới những ngôi biệt thự xa hoa, tráng lệ. Nhưng ở đây, thiết kế của chúng tôi không cần quá rộng lớn, khoa trương mà vẫn toát lên vẻ đẹp tinh tế, thanh thoát. Ngôi nhà phố không cần sử dụng quá nhiều họa tiết phào chỉ, nhưng khi nhìn vào mọi người đều có thể khằng định đây là công trình khoác lên mình những đường nét tân cổ điển. Nó giống như “hình ảnh gợi lên nghệ thuật”, khiến người nhìn không khỏi trầm trồ.

Nhà ống phố 4 tầng đẹp hoàn mỹ
Nổi lên trong thiết kế này chính là ban công vòm nghệ thuật, phong cách tân cổ điển thường sẽ tạo điểm nhấn ở các chi tiết mái, ban công này. Hiện nay, ban công sắt mỹ thuật có hình dáng đa dạng, thnh mảnh sang trọng toát lên vẻ đẹp của ngôi nhà. Nắm được điều này, các kiến trúc sư đã rất khéo léo thiết kế ban công bắt mắt này.
Hệ thống cửa tại mặt tiền 5m được KTS tối đa hóa giúp lấy ánh sáng vào tất cả các không gian sống bên trong. Cửa sử dụng toàn bộ loại xingfa với kính cường lực ô kính max cực đại giao hòa trong ngoại thất ngôi nhà phố đẹp.

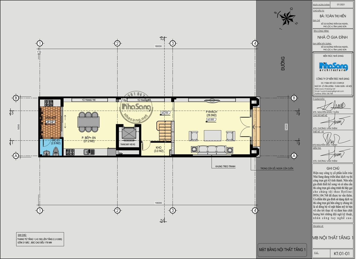
Mặt bằng công năng tầng 1 mẫu nhà phố đẹp
Không gian tầng l là khu vực tiến khách rộng và phòng bếp ăn và sân ướt phía sau nhà. Phòng khách hướng ra phía mặt tiền để lấy sáng và thoáng phía trước. Ngoài ra còn thiết kế khu vực thông tầng lấy sáng góc sân ướt để đảm bảo thông thoáng cho phòng bếp ăn phía sau. Với những khu đất liền kề hay nhà hàng xóm 2 bên đã xây kín, thiết kế theo cách này sẽ khắc phục được nhược điểm của thế đất.

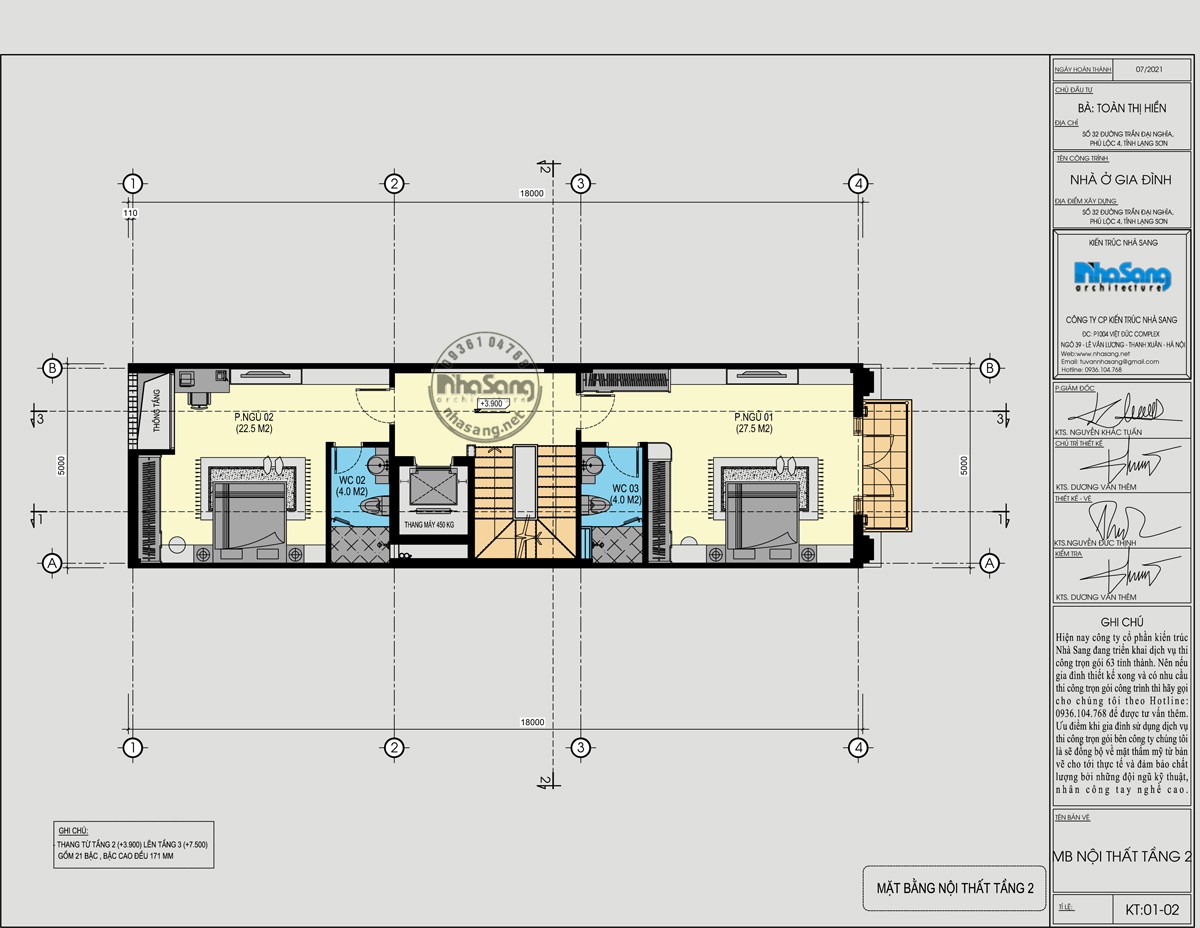
Mặt bằng công năng tầng 2+3 nhà ống đẹp
Không gian tầng 2+ 3 được bố trí 4 phòng ngủ tiện nghi đầy đủ công năng sử dụng cho các thành viên trong gia đình. Trong mặt bằng công năng này, thiết kế đầy đủ cả thang bộ và thang máy tiện dụng cho việc đi lại người lớn tuổi trong gia đình. Cầu thang ở giữa nhà dẫn thẳng lên tầng tiếp theo của nhà, các thành viên không còn phải đi vòng vào phía sau để di chuyển lên các tầng trên.

Mặt bằng công năng tầng 4 mẫu nhà phố đẹp
Tầng trên cùng gia đình bố trí phòng ngủ tọa cát hướng cát đón lộc đón tài cho gia đình. Mỗi gia đình sẽ có nhu cầu khác nhau nên khi bố trí các phòng, các kiến trúc sư đã thống nhất trước với khách hàng trong quá trình khảo sát thiết kế trước đó. Đó là về thiết kế phối cảnh và bố trí mặt bằng công năng của mẫu nhà tân cổ điển 4 tầng. Dưới đây chúng ta cùng xem phối cảnh 3D nội thất mẫu nhà đẹp đã được chúng tôi bàn giao cho gia đình chị Hiền nhé!

Thiết kế nội thất phòng khách nhà ống đẹp
Theo yêu cầu của gia chủ mong muốn mang một không gian sống trẻ trung, hiện đại pha chút tân cổ nhẹ nhàng, sang trọng vào trong ngôi nhà của mình, đội ngũ KTS Phú NGuyễn đã lên phương án thiết kế nội thất được gia đình rất ưng ý.

Quả thực, từ bản vẽ, thiết kế 3D cho đến khi hoàn thiện đã thể hiện được đúng yêu cầu và khiến gia chủ đặc biệt hài lòng với phong cách hiện đại này. Trong đó, không gian phòng khách thanh lịch với bộ sofa nâu vuông vắn, nổi bật cùng bàn trà bằng gỗ tự nhiên cao cấp, tinh tế ngay cạnh cửa chính rộng để đưa thật nhiều thiên nhiên và khí trời vào nơi được coi là bộ mặt ngôi nhà.

Trần nhà thạch cao làm giật cấp, cách điệu sang trọng với đèn trần trung tâm phòng hợp với nhu cầu của đại đa số gia đình Việt Nam. Bên cạnh đó, các chi tiết trang trí như ảnh treo tường, đèn mắt trâu âm trần cùng những món đồ lưu niệm xinh xắn càng tô thêm vẻ đẹp sang trọng cho không gian.

Hệ thống tủ quanh phòng khách sử dụng chất liệu gỗ tự nhiên thân thiện với ngôi trường và môi trường sống. Hệ tủ trưng bày đồ trang trí, đồ lưu nniemej cũng được thiết kế khéo léo kết hợp với kệ trưng bày giúp không gian tầng một trở nên thoáng đãng không còn sự bí bách của những bức tường xi măng.

Yếu tố thông gió, ánh sáng cũng được đảm bảo rõ ràng trong tổng thể không gian nội thất của ngôi nhà phố khi thiết kế mở phòng khách – bếp qua hành lang lối đi và khu vực thang tiện dụng trung tâm ngôi nhà.

Thiết kế nội thất phòng bếp ăn 21m2 sang trọng

Không gian bếp sang trọng, ngăn nắp, sạch sẽ với hai màu chủ đạo là màu vân vàng cam của gạch lát sàn và trần sơn trắng cùng với đồ nội thất phủ trắng có đan xen những chi tiết tay cửa phủ vàng điểm tô đẹp, sang. Có thể thấy gia chủ khá chăm chút cho gian bếp với việc sử dụng gỗ tự nhiên là bàn ăn và tủ bếp khiến không gian thêm sạch sẽ, sang trọng hơn bao giờ hơn.

Tủ rượu và tủ đồ phòng bếp được thiết kế kịch trần giúp tối đa không gian không gian lưu trữ gia đình. Đặc biệt, nơi phòng bếp được dành một phần diện tích sân ướt phía sau làm khu thông tầng nên khu vực này tận dụng được một cửa rộng ra cuối nhà giúp lấy thoáng, lấy sáng cho không gian khu vực bếp ăn này.
Yếu tố thông gió lại càng quan trọng hơn đối với không gian nấu nướng. Vì những mùi thức ăn trong quá trình nấu nướng, sinh hoạt cần có điều kiện thuận lợi để ra ngoài. Chính vì vậy, diện tích của cửa sau cũng rất thông thoáng cho tổng thể thiết kế nội thất sang trọng hiện đại đẹp này.

Thiết kế nội thất phòng thờ nhà ống đẹp
Thờ cúng là phong tục mang tính truyền thống của người phương Đông nói chung và người dân Việt Nam nói riêng. Đây được xem là một phần không thể thiếu trong đời sống của mỗi gia đình. Chính vì lẽ đó, mỗi khi thiết kế kiến trúc cho bất kỳ không gian nào, KTS của Phú NGuyễn luôn lưu tâm hết mực để tạo nên những mẫu nội thất phòng thờ tân cổ điển đẹp và ấn tượng.

Thiết kế nội thất phòng thờ ngoài việc đảm bảo yếu tố thẩm mỹ, các gia chủ còn có những yêu cầu rất cao về yếu tố phong thủy, đòi hỏi các kiến trúc sư phải có những am hiểu nhất định về luật phong thủy mới có thể tạo nên những không gian thiết kế hoàn hảo.
Khi thiết kế nội thất phòng thờ, bạn phải lưu ý tránh đặt bàn thờ gần luồng hút gió mạnh, gây “động” và có xác xuất thổi tàn lửa của nén hương ra chỗ khác gây cháy. Mặt bàn thờ nên đặt một tấm kính để đảm bảo không có các mối nguy hiểm hoặc rủi ro tránh lửa bén. Không gian đặt bàn thờ phải đủ thoáng khí. Không nên đặt bàn thờ cao quá gây có nhiều trở ngại hoặc thiếu thốn cho việc thờ tự, cũng không nên đặt thấp quá thiếu nghiêm trang.

Nội thất phòng ngủ gia chủ

Không gian phongg ngủ được thiết kế khá đơn giản. Phòng ngủ nên để theo sở thích của mỗi cá nhân và thiết kế hợp với nhu cầu – mong muốn của từng thành viên. Những món đồ trang trí nội thất phòng ngủ cũng có thể tùy ý lựa chọn hoặc theo sự chỉ dẫn của các kiến trúc sư để có thể mang tới một không gian phòng ngủ ưng ý nhất.

Điển hình như không gian phòng ngủ 1 này chẳng hạn, ngay cạnh giường ngủ được bố trí bàn tab, bàn trang điểm, áp sát tường là tủ quần áo đứng với 5 cánh rộng rãi. Với tủ quần áo 5 cánh, gia chủ có thể thoải mái đựng quần áo, đồ đạc, vali,…

Trong cuộc sống hiện đại không thể thiếu được những hoạt động giải trí trước khi ngủ nghỉ. Do vậy, phòng ngủ cũng được bố trí tủ – kệ tivi và tivi to màn hình rộng với khoảng cách vừa đủ tới mắt xem khi nằm giường trước khi ngủ.

Nội thất phòng ngủ người lớn tuổi gia đình

Với phòng ngủ 2, không gian phòng ngủ này được thiết kế với bố cục khá đơn giản, điểm nhấn chính vẫn là đó chính là bộ giường ngủ cao cấp kết hợp với kệ TV bằng gỗ tân cổ nhẹ nhàng phủ gam màu trắng nổi bật, trang trọng vẫn tạo nên sức thu hút cho tổng thể nội thất tân cổ cao cấp của căn phòng.

Ngoài bộ giường, kệ TV thì tủ quần áo 4 cánh kết hợp với các ô để đồ Decor cũng góp phần khiến cho không gian phòng ngủ trở nên sang trọng, đẳng cấp. Ngoài ra, không gian phòng ngủ cũng được thiết kế vô cùng thoáng đãng với hệ thống cửa sổ kính cường lực.

Nội thất phòng ngủ con gái gia chủ

Không gian phòng ngủ 3 được thiết kế có phần hơi tối giản bởi diện tích căn phòng ngủ cũng không quá rộng rãi như 2 căn phòng trước. Vẫn là các món đồ nội thất cơ bản như giường, kệ TV, tủ, bàn phấn. Nhưng điểm ấn tượng cho căn phòng này chính là khoảng view đẹp mắt ra bên ngoài.

Khu vực kệ tivi và hệ thống tủ bố trí khoa học

Với căn phòng ngủ cuối cùng của căn nhà, thì nơi đây được thiết kế thiên về việc bắt sáng tự nhiên để làm nổi bật lên được không gian nội thất gỗ óc chó cao cấp bên trong. Không cần phải nói quá nhiều về đồ nội thất nữa phải không ạ? Cái chúng ta nhìn thấy đó chính là việc bố trí các món đồ nội thất vô cùng thông minh và hợp lý. Từ đó dù căn phòng có diện tích không quá rộng nhưng khi nhìn vào thì thật sự căn phòng trông rất rộng rãi.

Nội thất phòng ngủ đầy đủ tiện nghi

Với việc các không gian phòng ngủ được thiết kế tương tự nhau, có thể thấy được các căn phòng đều rất ấm áp, đơn giản nhưng lại vô cùng sang trọng, đẳng cấp với nội thất gỗ óc chó cao cấp. Cũng chính bởi vậy mà phương án thiết kế nội thất hiện đại này của Phú NGuyễn nhận được rất nhiều sự ưu ái và đồng ý của các thành viên trong gia đình gia chủ.
Trên đây là toàn bộ hình ảnh 3D về mẫu thiết kế nội thất gỗ tự nhiên sang trọng mà chúng tôi đã thực hiện. Phương án thiết kế nội thất được chủ đầu tư chấp nhận và vô cùng hài lòng với ý tưởng thiết kế mà kiến trúc sư đã thực hiện.
Phú NGuyễn với đội ngủ KTS có nhiều kinh nghiệm trong lĩnh vực thiết kế thi công trọn gói nội thất tân cổ điển nhà ở với kiến thức chuyên môn và gu thẩm mỹ nghệ thuật cao cam kết sẽ sáng tạo hết mình mang lại không gian sống lý tưởng nhất cho bạn và gia đình.
Liên hệ thiết kế và thi công:


